La camera matrimoniale di Alessandra


 


Particolare della colonna con nicchie realizzata nell’angolo tra armadio e comodino.
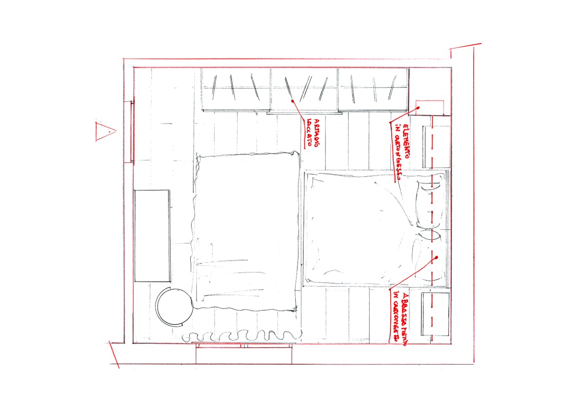
L’abbassamento sopra la testiera, ha permesso di inserire un’illuminazione soft.